Zpět na výběr bytů
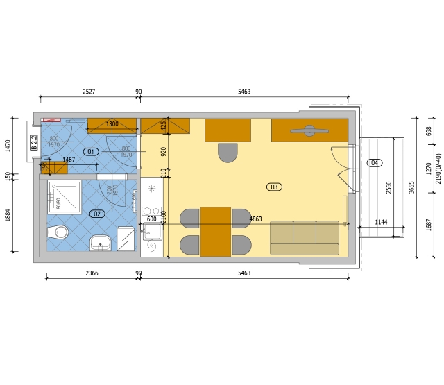
BD 1 | 2. np. | B 2.2
| Stav | Volný |
| Prodejní plocha bytu | 29.6 m2 |
B 2.2
| Podlahová plocha bytu | 29,60 m2 |
| 01 Zádveří | 3,70 m2 |
| 02 Koupelna + WC | 4,60 m2 |
| 03 Obývací pokoj + kuchyň | 20,00 m2 |
| Balkón | 3 m2 |
| Orientační náklady na byt | 1 875 Kč |
Cena: 2 590 824 Kč
Cena včetně DPH
Ke stažení
Pozice bytu v budově
Ke stažení